Architectural
Mechanical
Secure
Structural
  Decorative GatesRailings & GatesStaircasesHandrail & BalustradeArtwork & SculptureEnglish HeritageSurveysDesign Services3D VisualisationContact Us    
   
 

Design Services

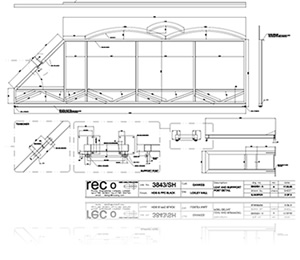
The design office at Rowley Engineering offers services to complement your own production or design teams. The services offered at present include:

  • Project development & management,
  • 2D & 3D draughting services for mechanical, structural & architectural disciplines.
  • Structural & mechanical calculations
  • Finite Element Analysis (FEA)
  • 3D surface modelling & tooling design
  • 3D product visualisation / animation & architectural 3D rendering
  • Drawing plots & photo-realistic prints up to A1

The design office can also supply the relevant documentation to complete the package including FMEA, Risk assessments, method statements, and declaration of conformity documents.

Contact design@roweng.com for further information